5. Juli 2014

Haus SD | Neubau eines Merhfamilienhauses

Für ein Grundstück in Korschenbroich wurden wir mit dem Entwurf eines Mehrfamilienhauses beauftragt. Das Konzept sieht 5 Wohnungen und eine Tiefgarage vor. Der mit dem Bauamt bereits abgestimmte Bauantrag wird in den nächsten Tagen eingereicht.

27. Juni 2014

Haus BoHa | Umbau eines Mehrfamilienhauses

Für ein Mehrfamilien- Stadthaus in Düsseldorf – Oberkassel haben wie den Aus- bzw. Umbau des Dachgeschosses geplant. Durch die Erhaltungs- und  Denkmalschutzsatzung, die fast alle Gebäude im Kernbereich von Oberkassel betrifft, sind Umbauten und vor allem Erweiterungen in dem Bereich immer eine besondere Herausforderung, der wir uns gerne stellen. Die Maßnahmen am Haus BoHa sollen erst in den nächsten 2 Jahren umgesetzt werden.

29. Mai 2014

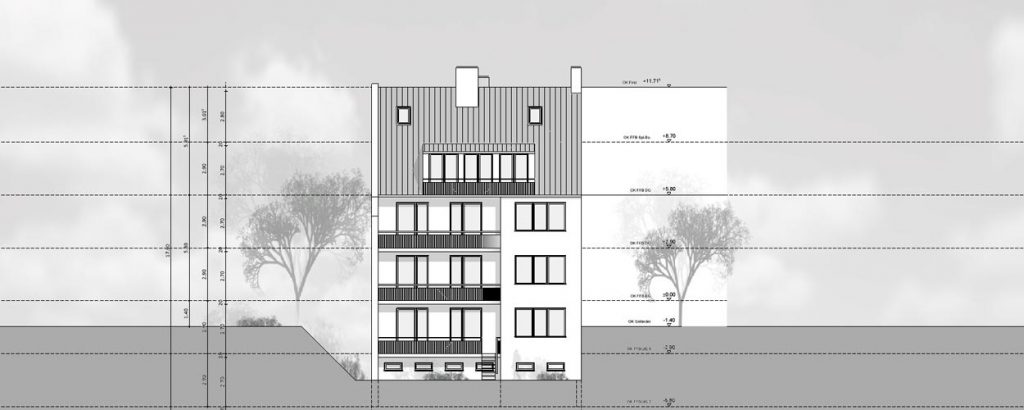
Haus W | Neubau eines Einfamilienhauses in Meerbusch Büderich

Seit Anfang des Jahres ist das Haus W bezogen. Nächsten Monat wird unsere Fotografin die Fotos für die Projektmappe machen.

26. Mai 2014

Haus GOLDBLICK

Coming soon… in MG

25. Mai 2014

RFCV | Veröffentlichungen

Wir freuen uns über die Veröffentlichung von Haus S in der aktuellen Ausgabe des Magazins CUBE.

CUBE | Das Metropolmagazin für Architektur, modernes Wohnen und Lebensart.

Link zur Online- Ausgabe: 02-2014

Weiterhin freuen wir uns über die Einladung zur Präsentation einiger unserer Projekte auf der Homepage von Quartier7.

24. Mai 2014

Haus PRT | Neubau eines Einfamilienhauses in Düsseldorf- Kaiserswerth

In einem der schönsten Ortsteile Düsseldorfs, unweit des legendäreren Berliner Imbiss, entsteht das Haus PRT. Wir freuen uns über den Auftrag und auf die weitere Detailausarbeitung unseres Vor-Entwurfes.

20. Mai 2014

Projekt NAH

Wir freuen uns auf ein neues spannendes städtebauliches Nachverdichtungs-Projekt. Neben dem Neubau von 2 Stadthäusern mit Atrien, die interessante Blickachsen ermöglichen, wird das Bestandshaus umgebaut und erweitert. Bereits Ende nächsten Monats wollen wir den Bauantrag zu dem Projekt einreichen.

14. Mai 2014

Muckis Cup 2014 | Wir sind dabei!

Wir freuen uns auf die Teilnahme am 5. Meerbuscher Unternehmer Cup für Kids 2014. Für den guten Zweck ziehen wir uns die alten Stollenschuhe an und hoffen, dass durch die tatkräftige Unterstützung unserer beiden Werk- Studenten etwas mehr als der letzte Platz drin ist. www.muckis-cup.de.

19. April 2014

Ei, Ei, Ei …

Das RFCV- Team wünscht allen Kunden, Freunden und deren Familien ein erholsames langes Wochenende und ein schönes Osterfest!

16. April 2014

Haus THY | Neubau eines Einfamilienhauses in Mönchengladbach

Die Arbeiten am Haus THY wurden begonnen. Am Freitag wurde die Decke über dem Erdgeschoss betoniert.

10. April 2014

Haus H | Neubau eines Einfamilienhauses

Auch bei Haus H stehen wir kurz vor Einreichung des Bauantrages. Das Einfamilienhaus kann optional als Zweifamilienhaus genutzt bzw. umgenutzt werden.

9. April 2014

Haus ARK | Neubau eines Mehrfamilienhauses

Nachdem die positive Bauvoranfrage vorliegt, reichen wir den Bauantrag zum Haus ARK bald ein. Hier entsteht ein Mehrfamilienhaus mit fünft Wohnungen und  einer Tiefgarage.

21. März 2014

Haus G | Umbau eines Einfamilienhauses

Der Umbau von Haus G ist fast abgeschlossen. Neben kleinen strukturellen Änderungen, wurde eine neue Treppe vorgesehen, alle Böden wurden erneuert und das Bad um einen an der Fassade schwebenden Kubus erweitert, der nach der Statik leider auf Stützen stehen muss. Weitere Bilder folgen nach dem Einzug.

18. März 2014

OTS | Firmensitz

In den letzten Monaten haben wir den Firmensitz der Fa. OTS (ca. 15.000 m²) aufgenommen. Nun erarbeiten wir ein Konzept zur Umstrukturierung. Ein ca. 18.000 m² großes Grundstück neben dem Firmensitz sollen wir für die Realisierung von Wohnbebauung entwickeln.

17. März 2014

Haus Ha | Neubau eines Einfamilienhauses

Für Haus Ha haben wir bereits die Ausführungspläne vorbereitet. Sobald die Baugenehmigung vorliegt können die Arbeiten am Haus Ha beginnen.

14. März 2014

Haus V | Neubau eines MFH

Für ein Grundstück in Mönchengladbach Hardt haben wir ein Mehrfamilienhaus mit 5 Wohnungen entworfen. Nachdem die Vorgespräche mit der Bauverwaltung positiv verliefen, reichen wir jetzt den Bauantrag ein.

12. März 2014

Bürohaus S+K | Umbau einer Villa

Für die Firma S+K haben wir den Umbau einer Villa geplant. Hier soll der neue Firmensitz entstehen. Der Bauantrag wurde bereits Anfang des Jahres eingereicht.

7. März 2014

Haus P | Neubau eines Einfamilienhauses

Der Entwurf für das Haus P steht bereits seit 6 Monaten. Sobald die Erschließung des Grundstückes fertig ist, sollen die Arbeiten am haus P unmittelbar beginnen.

1. März 2014

Haus Dr. J | Neubau eines EFH in Mönchengladbach

Für das wohl letzte Grundstück am “Bökelberg” haben wir das Haus Dr. J entworfen. Der Bauantrag ist eingereicht und der Rohbau ausgeschrieben. Die Arbeiten sollen kurzfristig beginnen.

28. Februar 2014

Haus KA-K | Neubau eines Mehrfamilienhauses mit Tiefgarage

Fertigstellung der Bodenplatte.

Anfang 2013 wurden wir mit dem Neubau eines Mehrfamilienhauses mit 6 Wohneinheiten beauftragt. Die ca. 100 m² großen Wohnungen sollen vermietet werden. Das Mietshaus soll möglichst autark mit Energie versorgt werden. Daher werden wir bei dem Projekt eine Wärmepumpe in Kombination mit einer Photovoltaik- Anlage so kombinieren, dass externe Energielieferanten nicht mehr notwendig sind.